Zakažite sastanak pozivom na broj:
065 53 11 200
NovogradnjaNis.rs logo
065 53 11 200

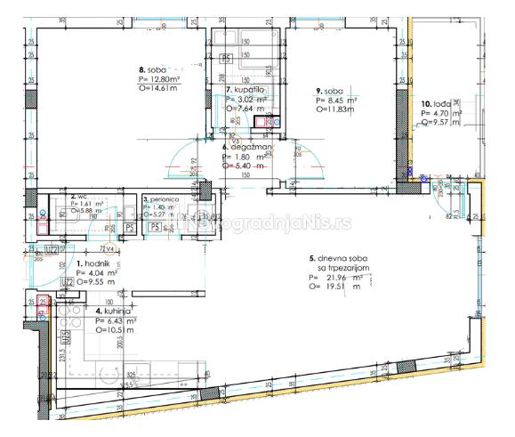
Durlan, 64m2, dvoiposoban stan u novogradnji

Durlan

Pogledaj projekat:

Cena:
160.000 €

Kliknite i ostavite kontakt kako biste saznali kako ovaj stan možete kupiti uz pomoć stambenog kredita:

Podeli stan sa prijateljima
Kopiraj link

Detalji oglasa:
Cena:
Tip oglasa:
Tip objekta:
Tip gradnje:
Stanje objekta:
Kvadratura:
Struktura:
Sprat:
Način grejanja:
Uknjiženost:
160.000 €
Prodaja stana
Stan
Novogradnja
Izvorno
64 m2
2.5
I, II, III/3
Centralno
U izgradnji

Ostale informacije:
Plaćanje u kešu:
Kupovina preko kredita:
20% odmah
Parking:
8000€
Garaža:
Nema garažnih mesta
Za više informacija pozovi naš prodajni tim na broj:
018 310 44 55
Prijavi grešku u oglasu
Zakaži gledanje stana
Piši nam za sva dodatna pitanja
Selektuj šta te interesuje, odgovorićemo u najkraćem roku:
Ostalo:
Naš kontakt telefon
Novogradnja Niš - profilna slika
018 310 44 55