Zakažite sastanak pozivom na broj:
018 310 44 55
NovogradnjaNis.rs logo
018 310 44 55

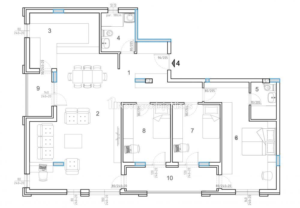
Durlan, 111.46m2, troiposoban stan u novogradnji

Durlan

Pogledaj projekat:

Cena:
245.215 €

Kliknite i ostavite kontakt kako biste saznali kako ovaj stan možete kupiti uz pomoć stambenog kredita:

Podeli stan sa prijateljima
Kopiraj link

Detalji oglasa:
Cena:
Tip oglasa:
Tip objekta:
Tip gradnje:
Stanje objekta:
Kvadratura:
Struktura:
Sprat:
Način grejanja:
Uknjiženost:
245.215 €
Prodaja stana
Stan
Novogradnja
Izvorno
111.46 m2
3.5
II/4
Etažno
U izgradnji

Ostale informacije:
Plaćanje u kešu:
40% u startu
Kupovina preko kredita:
40% odmah
Parking:
8.500€
Za više informacija pozovi naš prodajni tim na broj:
018 310 44 55
Prijavi grešku u oglasu
Zakaži gledanje stana
Piši nam za sva dodatna pitanja
Selektuj šta te interesuje, odgovorićemo u najkraćem roku:
Ostalo:
Naš kontakt telefon
Novogradnja Niš - profilna slika
018 310 44 55