Zakažite sastanak pozivom na broj:
060 58 100 88
NovogradnjaNis.rs logo
060 58 100 88

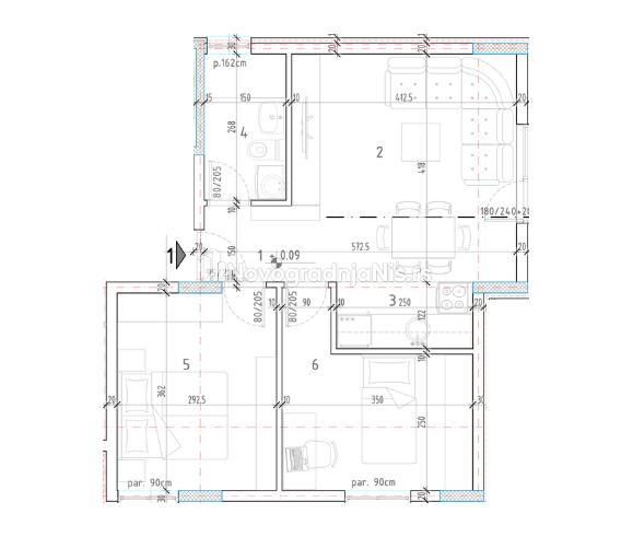
Trošarina, 45.68m2, dvoiposoban stan u novogradnji

Trošarina

Pogledaj projekat:

Cena:
75.370 €

Kliknite i ostavite kontakt kako biste saznali kako ovaj stan možete kupiti uz pomoć stambenog kredita:

Podeli stan sa prijateljima
Kopiraj link

Detalji oglasa:
Cena:
Tip oglasa:
Tip objekta:
Tip gradnje:
Stanje objekta:
Kvadratura:
Struktura:
Sprat:
Način grejanja:
Uknjiženost:
75.370 €
Prodaja stana
Stan
Novogradnja
Izvorno
45.68 m2
2.5
Prizemlje/4
Električno
U izgradnji

Ostale informacije:
Plaćanje u kešu:
Na upit
Kupovina preko kredita:
50% učešće u kešu, 50% na stambeni kredit
Parking:
5.000 evra u dvorištu
Garaža:
Nema
Za više informacija pozovi naš prodajni tim na broj:
018 310 44 55
Prijavi grešku u oglasu
Zakaži gledanje stana
Piši nam za sva dodatna pitanja
Selektuj šta te interesuje, odgovorićemo u najkraćem roku:
Ostalo:
Naš kontakt telefon
Novogradnja Niš - profilna slika
018 310 44 55